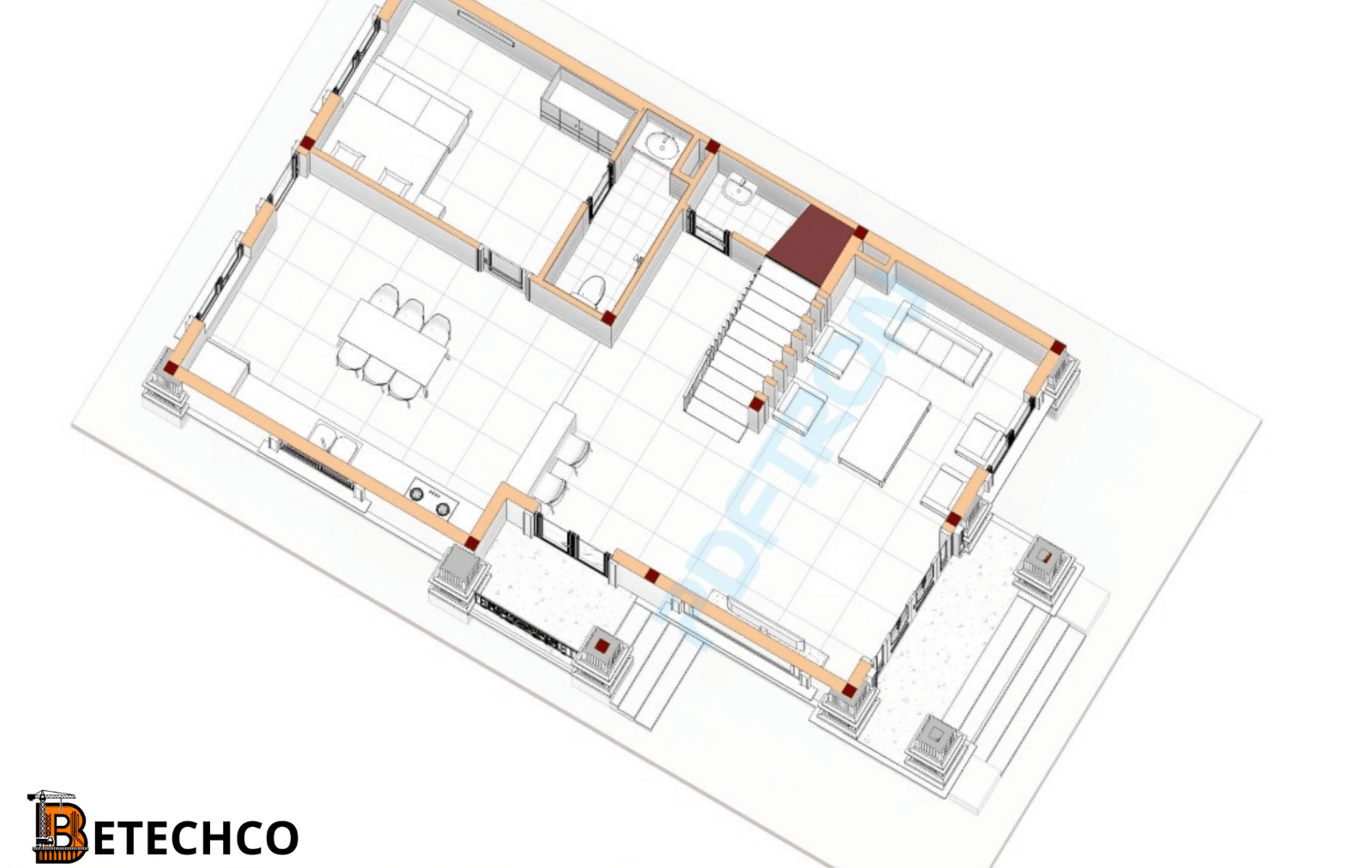
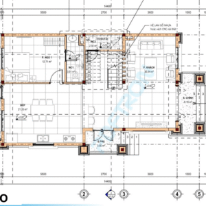
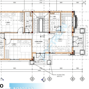
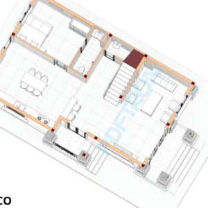
Thiết kế – thi công trọn gói cũng là một trong những thế mạnh của Betechco được rất nhiều khách hàng đánh giá cao. Betechco rất vinh hạnh khi sau quá trình thiết kế được chủ đầu tư tiếp tục tin tưởng lựa chọn là đơn vị đồng hành trong khâu hoàn thiện các công trình biệt thự. Hôm nay, Betechco xin chia sẻ niềm vui đó tới các bạn một hạng mục công trình do Betechco thi công trọn gói cho gia chủ Khúc Ngọc Diên tại Liên Sơn, Đắk Lắk, công trình biệt thự 2 tầng tân cổ điển không chỉ là một công trình xây dựng, mà còn là biểu tượng của sự hòa quện giữa nét đẹp cổ điển và hiện đại






























Đánh giá
Chưa có đánh giá nào.