Nhắc đến lâu đài là ai trong chúng ta cũng nghĩ ngay đến những công trình đồ sộ, xa hoa, đắt đỏ cùng với lối kiến trúc độc đáo và vô cùng bắt mắt thể hiện đẳng cấp, uy quyền của gia chủ. Trong bài viết hôm nay Betechco xin giới thiệu đến quý vị và các bạn mẫu lâu đài đẹp lộng lẫy của gia đinh anh Nhiên có địa chỉ tại Thanh Hóa
Phối cảnh 3D mẫu lâu đài đẹp lộng lẫy

Được xây dựng trên một khuôn đất vuông vắn tòa lâu đài hiện lên vô cùng uy nghi và sang trọng. Lấy sảnh chính làm trung tâm chia các mảng miếng kiến trúc thành các phần tương đồng đối xứng nhau. Phong cách kiến trúc tân cổ điển kết hợp với phong cách hiện đại mang đến một tổng thể vô cùng hài hòa.
Lựa chọn màu trắng làm màu chủ đạo, màu sắc biểu tượng cho sự thanh lịch, trang nhã. Với khả năng bắt sáng tốt, tòa lâu đài như bừng sáng kết hợp màu xanh của mái, màu nâu của cửa mang đến một bức tranh màu sắc nổi bật giữa tất cả các công trình xung quanh.

Nối cos sân với cos nền nhà là hệ bậc ngũ cấp được tính toán cẩn thận, phù hợp phong thủy mang lại vượng khí cho gia chủ. Các mặt bậc được ốp đá sáng màu, ngoài ra tại sảnh phụ còn được thiết kế thêm lan can con tiện đảm bảo an toàn cho việc đi lại của mọi thành viên.
Hệ cột kèo tại phần ngoại thất cũng được thiết kế vô cùng da dạng. Nổi bật nhất là đôi cột lớn tại sảnh chính kéo dài từ sảnh lên đến tầng 2 đỡ lấy phần mái hiên đưa ra tạo sự bề thế, vững trãi cho công trình. Ngoài hệ cột, để trang trí cho phần ngoại thất các KTS còn sử dụng các chi tiết hoa văn, phù điêu, phào chỉ làm điểm nhấn thu hút mọi ánh nhìn.

Công trình được lên ý tưởng sắp xếp. bố trí hệ cửa cao lớn. Lựa chọn chất liệu nhôm kính xingfa hiện đại giúp tối đa việc đón nhận nguồn ánh sáng, cũng như gió mát tự nhiên vào không gian bên trong. Khiến ngôi nhà luôn thông thoáng, mát mẻ.
Để kết nối những mảng kiến trúc cũng như tạo không gian mở cho công trình, tại tầng tum là hệ lan can con tiện vừa mang tính thẩm mỹ mà các khe hở nhỏ ở giữa vẫn giúp gió lưu thông mà vẫn đảm bảo an toàn.

Không thể không kể đến đó là hệ mái Mansard kết hợp với mái vòm, đây là hệ mái đặc trưng của các công trình lâu đài được lòng rất nhiều gia chủ bởi sự sang trọng, quyền quý mà nó đem lại. Hơn nữa việc sử dụng hệ mái này sẽ giúp gia chủ có thêm một không gian trống ở bên trên phục vụ cho nhu cầu sinh hoạt của gia đình.
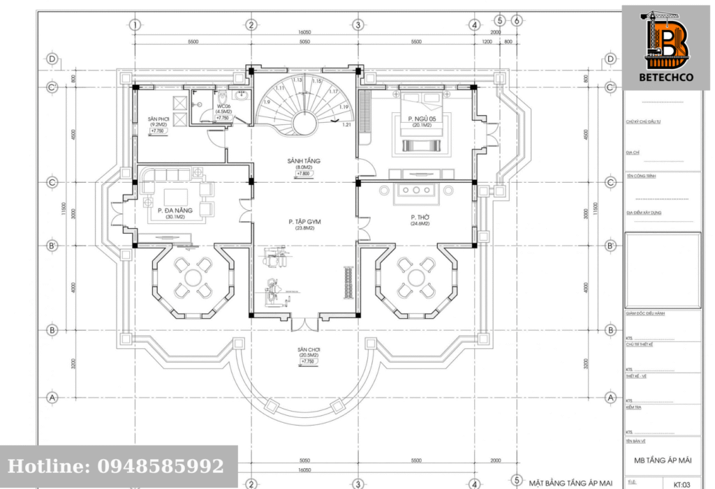
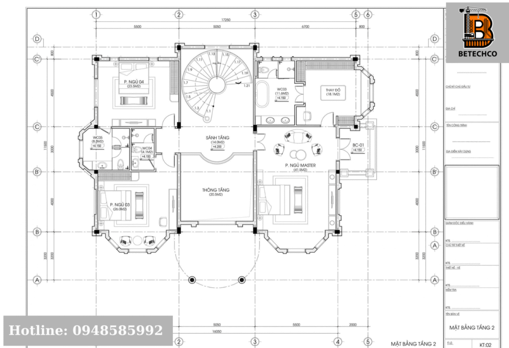
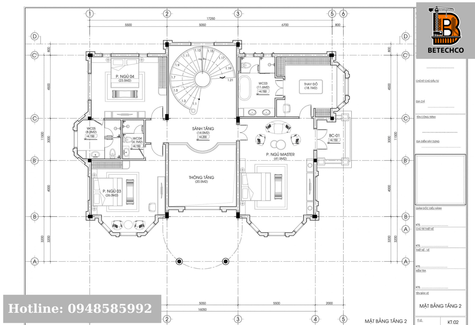
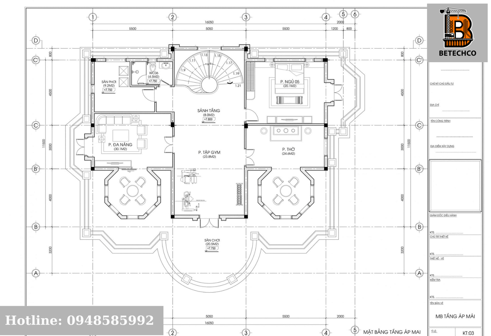
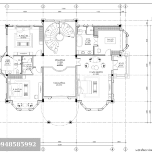
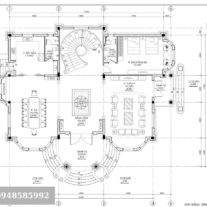
Mặt bằng công năng mẫu lâu đài tân cổ điển đẹp lộng lẫy
Không chỉ mang vẻ đẹp ngoại thất mà mẫu lâu đài này còn được lên ý tưởng mặt bằng công năng sử dụng đầy đủ tiện nghi, được sắp xếp khoa học, phù hợp với nhu cầu sinh hoạt của mọi thành viên trong gia đình. Mời các bạn cùng tham khảo mặt bằng công năng được sắp xếp dưới đây.

Mặt bằng định vị công trình

Mặt bằng công năng tầng 1

Betechco luôn tự tin mang đến cho mọi quý khách hàng sự hài lòng và tin tưởng trong thiết kế và thi công tất cả các hạng mục công trình. Với những kinh nghiệm và chuyên môn sẵn có, chúng tôi luôn nỗ lực từng ngày mang đến khắp các tỉnh thành những vẻ đẹp sáng tạo mà chất lượng trong các công trình xây dựng. Gọi ngay cho Betechco theo Hotline: 0948585992 – 0979302216 để biết thêm vê dịch vụ Thiết kế và Thi công trọn gói lâu đài, dinh thự.























Đánh giá
Chưa có đánh giá nào.