Mẫu thiết kế nhà cấp 4 mái Nhật hiện đại đang là xu hướng hiện nay, với mẫu nhà đơn giản nhưng không kém phần hiện đại, chính vì vậy mà các gia chủ luôn muốn thiết kế cho gia đình mình một mẫu nhà như này. Những ngôi nhà mái Nhật không chỉ là nơi ở, mà còn là điểm nhấn của sự độc đáo và sáng tạo, tạo ra không gian sống ấm cúng và thân thiện với môi trường. Với mái nhật mang đặc trưng của nền kiến trúc truyền thống Nhật Bản, chúng tạo nên một bức tranh đẹp hòa quyện giữa linh hoạt hiện đại và sự tôn vinh nguồn cảm hứng từ quá khứ. Hôm nay cùng chiêm ngưỡng mẫu nhà cấp 4 mái Nhật được chúng tôi thiết kế và thi công trọn gói cho anh Vi Văn Hạnh có địa chỉ tại Thanh Hóa.
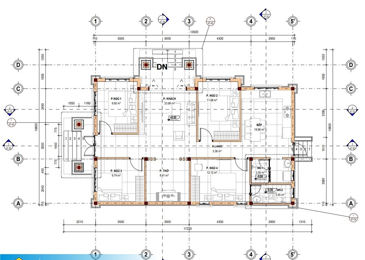
Chi tiết công năng mẫu nhà cấp 4 mái Nhật
Nhà cấp 4 mái Nhật với diện tích 17.2*10.8m, gồm 1 phòng thờ, 1 phòng khách, 1 phòng bếp và 4 phòng ngủ, trong đó có 1 phòng ngủ khép kín và 1 nhà vệ sinh để tiện sinh hoạt hơn. Nhà cấp 4 được chúng tôi thiết kế với 2 sảnh chính cho gia chủ, với thiết kế như thế tạo không gian gần gũi và thuận tiện cho gia đình anh Hạnh hơn. Thiết kế mỗi phòng đều có cửa sổ thông thoáng ra phía ngoài, giúp những ánh nắng có thể tràn vào trong phòng như thế sẽ mang lại cảm giác thông thoáng cho các phòng.
![]() |
![]() |
![]() |
Phối cảnh 3D mẫu nhà cấp 4 mái Nhật hiện đại
Ngôi nhà với lớp sơn màu trắng làm chủ đạo, hệ mái Nhật truyền thống với hệ mái khung kèo thép nhẹ, ngói lợp mái romantisc. Khoảng sân rộng rãi được lát những gạch đá xanh Thanh Hóa. Phía dưới những ô cửa sổ được ốp gạch đá màu trắng sữa tô thêm với lớp sơn màu trắng của ngôi nhà. Chân tường được ốp gạch màu đen để giảm sự rêu mốc bám quanh.
![]() |
![]() |
![]() |
Chuẩn bị mặt bằng mẫu nhà cấp 4 mái Nhật hiện đại
Để có thể xây dựng được một công trình tốt thì điều đầu tiên phải làm là chuẩn bị được mặt bằng tốt. Chuẩn bị mặt bằng là bước khá quan trọng để xây dựng một công trình nói chung. Dưới đây là những công đoạn cần thiết trước khi tiến hành xây dựng mà chủ đầu tư có thể tham khảo và lưu ý nếu là người tự thực hiện cho công trình nhà mình.
– Phá dỡ, dọn dẹp mặt bằng
– Tập kết nguyên vật liệu
– Làm rào chắn, bạt phủ đảm bảo an toàn cho mọi người cũng như tài sản xung quanh.
– Chuẩn bị nguồn điện, nước, máy móc thiết bị sẵn sàng cho thi công.
Tiến hành thi công trọn gói mẫu nhà cấp 4 mái Nhật hiện đại
Thi công trọn gói – Phần móng
Trong công tác thi công trọn gói mẫu nhà cấp 4 hiện đại nói riêng hay các công trình kiến trúc nói chung thì thi công móng là công đoạn đầu tiên quan trọng quyết định sự an toàn trong quá trình sinh hoạt về sau của gia chủ cũng như sự trường tồn với thời gian của công trình. Móng nhà là một trong những yếu tố quan trọng nhất vì đó là nền tảng nâng đỡ và quyết định sự bền vững cho cả công trình.
Thực tế, đối với bất kỳ ngôi nhà nào dù được thiết kế theo phong cách nào, diện tích bao nhiêu nếu muốn bền vững thì móng phải tốt, phải chắc chắn. Chính vì vậy, xử lý nền móng là một công việc cực kỳ quan trọng trong tiến trình xây dựng một căn nhà. Phải đảm bảo sao cho nền móng vững chắc không bị lún, nứt hoặc ảnh hưởng các công trình xây dựng lân cận.
Thi công trọn gói – Phần thô
Xây nhà phần thô được hiểu là thi công kết cấu bê tông cốt thép (Móng, dầm, sàn, cột), tường gạch, cầu thang, mái, ngăn chia phòng ốc, ống nước âm tường, đế âm điện, tủ điện, dây điện đi âm tường âm sàn. Là những công tác hình thành bộ khung cho ngôi nhà giống như trong Hồ sơ thiết kế thi công.
Phần thô được xem là tiền đề quan trọng cho tất cả các quy trình, hạng mục thi công sau này, vì thế Kisato sẽ phải tính toán một cách kĩ lưỡng. Phần thô càng tốt, càng chuẩn, càng chính xác thì những phần sau thi công càng thuận tiện, càng tiết kiệm chi phí và thời gian, giảm thiểu ảnh hưởng tiêu cực đến công trình. Mời các bạn theo dõi những hình ảnh dưới đây để hiểu rõ hơn về quá trình thi công phần thô của công ty chúng tôi.
Đào móng ,sửa móng, làm thép
![]() |
![]() |
![]() |
![]() |
![]() |
![]() |
![]() |
![]() |
Trát ngoài, tháo cốt pha, làm điện
![]() |
![]() |
![]() |
Trát ngoài , trát trong, làm mái
Vì Sao Nên Chọn Kisato Là Đơn Vị Thi Công Trọn Gói Nhà
Quy trình giám sát 5 lớp:
Lớp 1: Kỹ thuật hiện trường từ lúc khởi công tới lúc bàn giao công trình
Lớp 2: Tổ giám sát với mỗi công trình chúng tôi đều lập nhóm giám sát online từ xa.
Lớp 3: Trưởng phòng thi công có trách nhiệm điều hành chung toàn bộ mảng thi công trên các công trình đang thi công trọn gói của KISATO với nhiệm vụ bổ sung, cải tiến, tham mưu, cập nhật các quy trình thi công mới hơn, tốt hơn.
Lớp 4: Lãnh đạo cấp cao trực tiếp giám đốc hoặc chủ tịch công ty ít nhất sẽ trực tiếp tới công trình 2-3 lần để kiểm tra tiến độ, chất lượng cũng như lắng nghe phản hồi của chủ nhà.
Lớp 5: Bộ phận chăm sóc khách hàng, tổng đài chăm sóc của KISATO sẽ được kích hoạt xuyên suốt từ quá trình thiết kế cho tới thi công trọn gói. Với nhiệm vụ thường xuyên hỏi thăm, lắng nghe ý kiến khách hàng để đảm bảo mọi phản hồi đều được báo cáo và giải quyết kịp thời.
– Nuôi thợ chính trực tiếp: Đội ngũ thợ chính hùng hậu thuộc biên chế của công ty có tay nghề giỏi, dày dặn kinh nghiệm và khả năng điều phối đội thợ phụ đảm bảo tiến độ, chất lượng của công trình.
– Đội ngũ thợ chính được tuyển chọn kỹ lưỡng từ những làng nghề có kinh nghiệm lâu năm thi công từ đường (Nam Định,…), thường xuyên được tham gia các lớp tập huấn nâng cao tay nghề
– Mạng lưới hoạt động: Là công ty có quy mô lớn, làm nhiều công trình trên toàn quốc, phục vụ khách hàng tận nơi khắp 63 tỉnh thành.
– Công nghệ xây dựng: KISATO trang bị đầy đủ những thiết bị thi công xây dựng hiện đại như cốp pha thép, máy phun vữa, giàn giáo thép, ván khuôn, cây chống, ván phủ phim công nghệ mới.
– Vật liệu xây dựng: KISATO có mối quan hệ hợp tác thân thiết với những nhà máy, nhà phân phối có uy tín khắp 63 tỉnh thành và cam kết cung cấp những vật liệu đúng nguồn gốc, đảm bảo chất lượng tốt.
– Biện pháp thi công: trước khi tiến hành thi công bất kỳ giai đoạn, hạng mục nào, KISATO có đội ngũ kiến trúc sư, kỹ sư lên trước các bản vẽ biện pháp thi công phần hoàn thiện chi tiết, tối ưu. Ví dụ như bản vẽ thi công kết cấu móng, cột, dầm, mái, bản vẽ lắp ghép các chi tiết cấu tạo đòn tay, rui,mè,…
– An toàn lao động: Tất cả công nhân, kỹ thuật viên, kỹ sư đều được công ty trang bị đầy đủ quần áo bảo hộ đảm bảo an toàn lao động theo nội quy.
Tự hào là đơn vị tiên phong trong lĩnh vực kiến trúc – xây dựng, KISATO không ngừng sáng tạo, hội nhập và phát triển để cho ra đời những mẫu thiết kế, những công trình xứng tầm đem đến cho chủ đầu tư trên khắp 63 tỉnh thành. Với kinh nghiệm thực chiến cùng đội ngũ nhân sự chuyên môn, chuyên nghiệp, chúng tôi tin rằng có thể đáp ứng mọi nhu cầu đồng thời thỏa mãn mọi nguyện vọng của gia chủ.





















































Đánh giá
Chưa có đánh giá nào.