Ngôi nhà này được chú trọng vào việc xây dựng mặt tiền. Phong cách này thể hiện sự tinh tế qua hai hệ trụ cột tròn cùng mái vòm cong ở phía trên giúp ngôi nhà trở nên ấn tượng. Phần mái thái giật cấp còn khiến ngôi nhà tăng thêm sự bề thế, sang trọng hơn.

Ngôi nhà sử dụng màu sơn trắng với phần trang trí bằng gạch ốp màu nâu vàng nâu thêm sinh động. Khoảng sân phía trước được lát đá cao cấp khiến tổng quan ngôi nhà đẹp hơn. Tiếp đến là phần bậc tam cấp kết nối không gian sân với ngôi nhà.

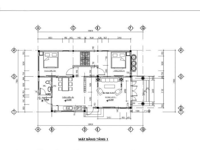
Từ sảnh bước vào là phòng khách được bố trí rộng rãi thể hiện sự hiếu khách của gia chủ. Tiếp theo là phòng bếp + ăn được bố trí gần cửa phụ giúp mùi thức ăn thoát ra ngoài dễ dàng hơn. 2 Phòng ngủ được bố trí nối liền nhau với có cửa sổ lớn để đón ánh sáng. Nhà vệ sinh chung được bố trí cuối nhà tạo không gian riêng tư khi sinh hoạt.













Đánh giá
Chưa có đánh giá nào.