Betechco được biết đến là đơn vị hàng đầu trong lĩnh vực thiết kế – thi công trọn gói tất cả các hạng mục công trình trên khắp 63 tỉnh thành. Với sự nỗ lực không ngừng nghỉ trong việc học hỏi, nghiên cứu, tiếp cận nhiều loại vật liệu, công nghệ cùng phong cách kiến trúc mới mà Betechco đã trình làng những sản phẩm thiết kế đều toát lên nét cá tính riêng biệt của mỗi chủ đầu tư.
Thiết kế – thi công trọn gói từ đường cũng là một trong những thế mạnh của Betechco được rất nhiều khách hàng đánh giá cao. Betechco rất vinh hạnh khi sau quá trình thiết kế được chủ đầu tư tiếp tục tin tưởng lựa chọn là đơn vị đồng hành trong khâu hoàn thiện công trình nhà từ đường. Hôm nay, Betechco xin chia sẻ niềm vui đó tới các bạn một hạng mục công trình do Betechco thi công trọn gói cho gia chủ Huỳnh Công Sơn tại Bình Sơn, Quảng Ngãi.
Phối Cảnh 3D Nhà Từ Đường 2 Tầng Do Betechco Thiết Kế Và Thi Công Trọn Gói
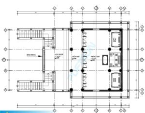
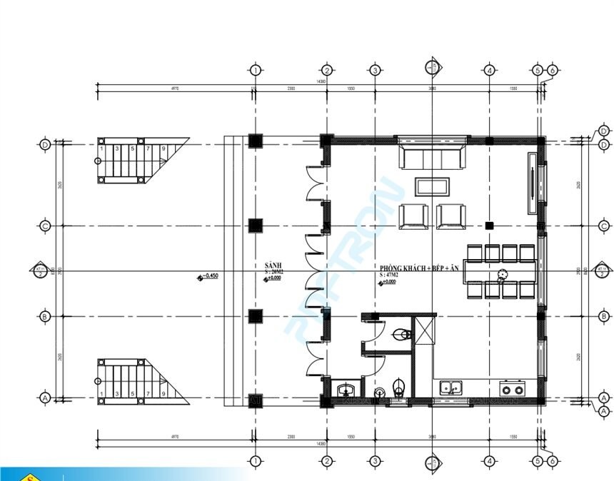
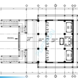
Để giúp các bạn có thể hình dung được từng chi tiết cụ thể của công trình trong quá trình thi công trọn gói từ đường Betechco xin điểm qua phối cảnh 3D và mặt bằng để có cái nhìn chuẩn xác nhất.
Phối cảnh 3D công trình từ đường 2 tầng

Trước Khi Thi Công Trọn Gói Nhà Từ Đường
Lễ khởi công là một trong những công đoạn không thể thiếu trong bất cứ công trình nào trước khi bước vào xây dựng. Về mặt tâm linh lễ khởi công chính là lễ xin phép thổ địa – thổ công mảnh đất của gia chủ cho phép được xây dựng trên mảnh đất ấy và cầu mong thần ban phước lành cho mảnh đất.
Chuẩn bị mặt bằng Thi Công Trọn Gói
Để có thể xây dựng được một công trình tốt thì điều đầu tiên phải làm là chuẩn bị được mặt bằng tốt. Chuẩn bị mặt bằng là bước khá quan trọng để xây dựng một công trình nói chung. Dưới đây là những công đoạn cần thiết trước khi tiến hành xây dựng mà chủ đầu tư có thể tham khảo và lưu ý nếu là người tự thực hiện cho công trình nhà mình.
– Phá dỡ, dọn dẹp mặt bằng
– Tập kết nguyên vật liệu
– Làm rào chắn, bạt phủ đảm bảo an toàn cho mọi người cũng như tài sản xung quanh.
– Chuẩn bị nguồn điện, nước, máy móc thiết bị sẵn sàng cho thi công.

Tiến Hành Thi Công Trọn Gói Nhà Từ Đường
Thi công trọn gói – Phần móng
Trong công tác thi công trọn gói từ đường nói riêng hay các công trình kiến trúc nói chung thì thi công móng là công đoạn đầu tiên quan trọng quyết định sự an toàn trong quá trình sinh hoạt về sau của gia chủ cũng như sự trường tồn với thời gian của công trình. Móng nhà là một trong những yếu tố quan trọng nhất vì đó là nền tảng nâng đỡ và quyết định sự bền vững cho cả công trình.
Thực tế, đối với bất kỳ ngôi nhà nào dù được thiết kế theo phong cách nào, diện tích bao nhiêu nếu muốn bền vững thì móng phải tốt, phải chắc chắn. Chính vì vậy, xử lý nền móng là một công việc cực kỳ quan trọng trong tiến trình xây dựng một căn nhà. Phải đảm bảo sao cho nền móng vững chắc không bị lún, nứt hoặc ảnh hưởng các công trình xây dựng lân cận

















Đánh giá
Chưa có đánh giá nào.