Mẫu nhà phố 2 tầng hiện đại luôn là mẫu nhà được nhiều gia chủ lựa chọn, với diện tích hạn chế nhưng gia chủ luôn muốn mẫu nhà có sự thu hút thì mẫu nhà này luôn dành cho bạn, mẫu nhà phố 2 tầng hiện đại không chỉ là nơi ở mà còn là biểu tượng của sự tiện nghi và thẩm mỹ. Với sự sáng tạo không ngừng và việc sử dụng các công nghệ xây dựng tiên tiến, các kiến trúc sư ngày nay đã tạo ra những ngôi nhà phố đẹp mắt và đáng sống. Hôm nay, kiến trúc Betechco giới thiệu đến bạn mẫu nhà phố hiện đại mang phong cách cách tân thu hút người nhìn được chúng tôi thiết kế cho gia chủ là anh Khơi có địa chỉ tại Nam Định. Cùng theo dõi qua bài viết xem mẫu nhà này thu hút như nào nhé.
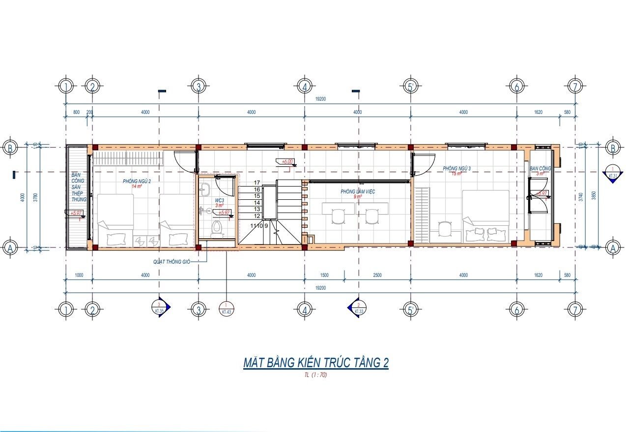
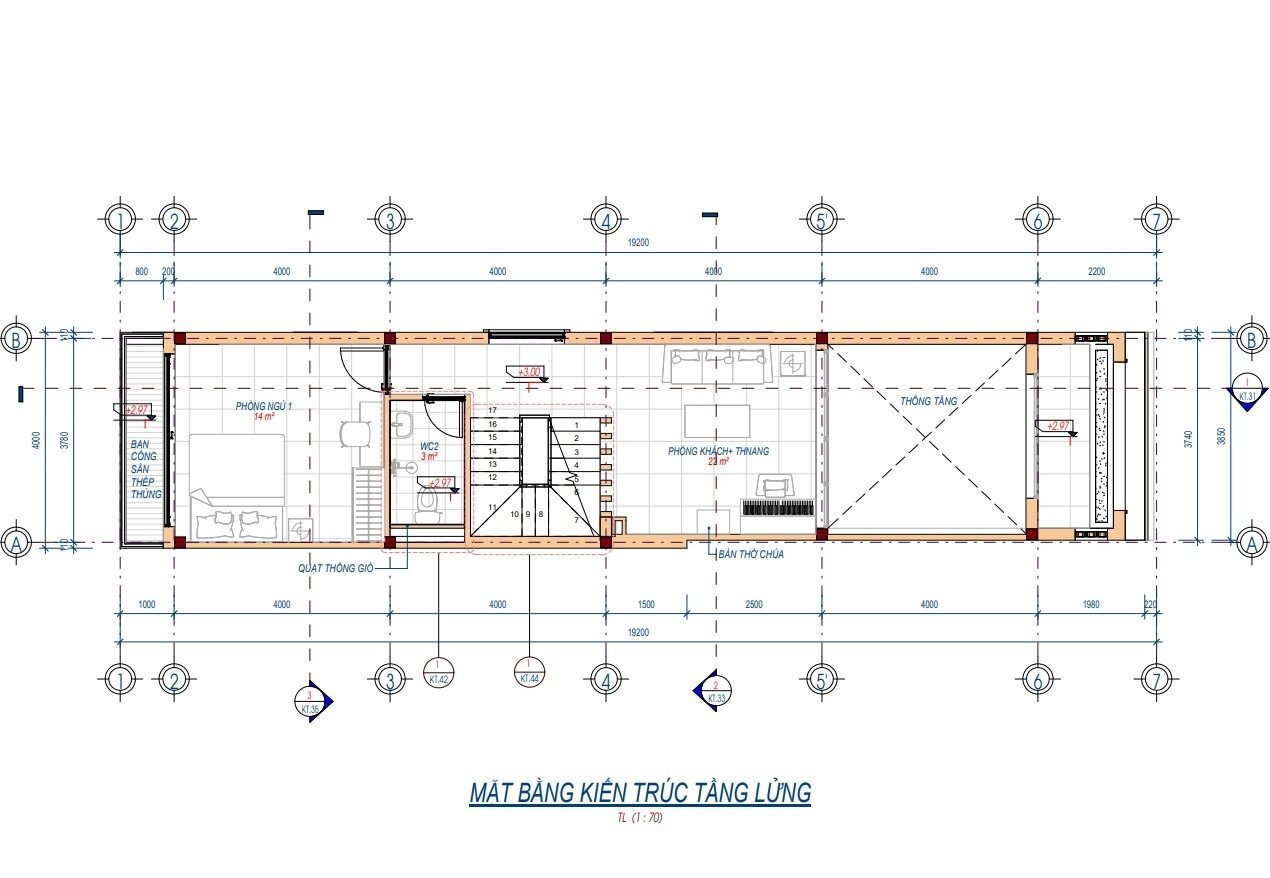
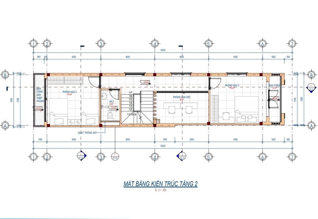
Công năng chi tiết mẫu nhà phố 2 tầng hiện đại
Ngôi nhà với chiều ngang là 3.8m, chiều sâu là 19.2m, ngôi nhà với thiết kế 1 tầng lửng, gồm 3 phòng ngủ, 1 phòng khách, 1 phòng bếp, 1 phòng làm việc và 1 khu để kinh doanh, để tiện sinh hoạt cho các tầng sẽ có nhà vệ sinh riêng, với mỗi tầng đều có thiết kế các cửa sổ xunh quang, giúp các phòng được thông thoáng hơn. Nội thất được thiết kế một cách tối giản nhưng không kém phần sang trọng, tạo nên không gian sống đẳng cấp và thoải mái, thiết kế không gian thêm những tiểu cảnh như cây xanh, giúp không gian thêm phần tươi mát cũng như tô điểm cho không gian phòng.

Phối cảnh 3D mẫu nhà phố 2 tầng hiện đại
Một trong những ưu điểm lớn của nhà phố 2 tầng hiện đại là khả năng tận dụng mọi không gian. Thay vì chỉ dựa vào diện tích ngang, các kiến trúc sư đã tận dụng cả chiều cao để tạo ra không gian sống rộng rãi hơn. Thiết kế mở cửa sổ lớn, sử dụng các cửa kính trượt giúp ánh sáng tự nhiên lan tỏa và tạo cảm giác thoáng đãng, gần gũi với thiên nhiên, sử dụng những cây xanh giúp ngôi nhà như thêm phần xanh tươi thu hút ánh nhìn của mọi người, bên hông kiến trúc sư còn thiết kế những lam gió 2 phía hông của ban công giúp ngôi nhà thêm phần thoáng mát, phía trước của tầng mái được thiết kế thêm phào để trang trí làm tăng thêm điểm nhấn cho phía trước của ngôi nhà phố.

Mẫu nhà phố 2 tầng hiện đại không chỉ là nơi ở mà còn là biểu tượng của sự tiện nghi và thẩm mỹ trong kiến trúc đương đại, ngôi nhà phía trước được ốp hoàn toàn bằng gạch đá màu trắng, điểm nhấn của ngôi nhà là phần cách điệu phía trước, thiết kế ốp gạch màu trầm giúp ngôi nhà thêm phần hòa nhã, điểm nhấn là những cây xanh như thêm phần bắt mắt,

Mẫu nhà phố 2 tầng hiện đại không chỉ có một kiểu dáng duy nhất mà còn đa dạng và linh hoạt theo sở thích và nhu cầu của gia chủ. Ngôi nhà mang phong cách hiện đại cực kỳ tối giản có không gian xanh mát rợp bóng cây cỏ, những bồn hoa xinh trước nhà giúp ngôi nhà thêm phần xinh đẹp hơn bao giờ hết, cánh cổng được thiết kế đơn giản thiết kế bằng những khung thép kết hợp cùng gỗ, phía chân những bồn hoa được ốp những gạch hoa giúp làm giảm rêu mốc hay thêm phần trang trí.

Thông tin liên hệ và tư vấn nhà phố 2 tầng hiện đại
Tự hào là đơn vị tiên phong trong lĩnh vực kiến trúc – xây dựng,Betechco không ngừng sáng tạo, hội nhập và phát triển để cho ra đời những mẫu thiết kế, những công trình xứng tầm đem đến cho chủ đầu tư trên khắp 63 tỉnh thành. Bên cạnh đó, Betechco còn không ngừng nghiên cứu, tìm tòi, áp dụng công nghệ, vật liệu tiên tiến nhất, chất lượng nhất vào thi công nhà để mang đến một không gian sang trọng, cao cấp, tối ưu được toàn diện về cả thẩm mỹ lẫn công năng. Với kinh nghiệm thực chiến cùng đội ngũ nhân sự chuyên môn, chuyên nghiệp, chúng tôi tin rằng có thể đáp ứng mọi nhu cầu đồng thời thỏa mãn mọi nguyện vọng của gia chủ.


















Đánh giá
Chưa có đánh giá nào.